Active with Contract

Listing Tools

Listed by Sarah Peluso of IPJ Real Estate (Cell: 802-349-8695)
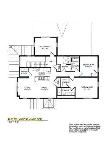
Welcome to Stonecrop Meadows, Middlebury's newest neighborhood! Located just 1/2 mile from downtown Middlebury, where restaurants, shopping, theater and more will be at your fingertips. This three bedroom, single level unit is on the second floor, and will be ready for occupancy in January of 2026. To be built with energy efficiency at the forefront, each unit will be heated and cooled with mini split technology, with a whole house ventilation system. Pull into your private garage, and then into your entry hall with a wrap around porch that provides a covered entry as well as outdoor space to enjoy morning coffee! Up the stairs you will find an open concept living area, with a generous kitchen featuring an island, with seating, pantry and energy star appliances. The kitchen transitions seamlessly into spacious dining and living areas making entertaining a breeze. Down the hall you will find the primary suite with walk in closet and 3/4 bath. Two additional bedrooms and a full bath provide room for guests or office space. A laundry room is conveniently located in the hall, to complete the living space. Don't forget the basement below that will provide ample storage as needed! Future community amenities will include green space, community garden, access to trails and more. Inquire for more details!

Property Details of 24 Brush Lane, Unit 8.2B

Map Location

Driving Directions

Broker Reciprocity 

Copyright 2025 PrimeMLS, Inc. All rights reserved. This information is deemed reliable, but not guaranteed. The data relating to real estate displayed on this display comes in part from the IDX Program of PrimeMLS. The information being provided is for consumers’ personal, non-commercial use and may not be used for any purpose other than to identify prospective properties consumers may be interested in purchasing. Data last updated November 8, 2025 1:53 AM EST

 

Hi there! How can we help you?

Contact us using the form below or give us a call.

Send Us A Message:

I agree to receive marketing and customer service calls and text messages from Cannizzaro Real Estate. To opt out, you can reply 'stop' at any time or click the unsubscribe link in the emails. Consent is not a condition of purchase. Msg/data rates may apply. Msg frequency varies. Privacy Policy.

Do not fill in this field:

This site is protected by reCAPTCHA and the Google Privacy Policy and Terms of Service apply.

Hi there! How can we help you?

Contact us using the form below or give us a call.

Send Us A Message:

Do not fill in this field:

This site is protected by reCAPTCHA and the Google Privacy Policy and Terms of Service apply.

Hi there! How can we help you?

Contact us using the form below or give us a call.

Send Us A Message:

Do not fill in this field:

This site is protected by reCAPTCHA and the Google Privacy Policy and Terms of Service apply.

Do not fill in this field:

This site is protected by reCAPTCHA and the Google Privacy Policy and Terms of Service apply.

Do not fill in this field:

This site is protected by reCAPTCHA and the Google Privacy Policy and Terms of Service apply.

Do not fill in this field:

This site is protected by reCAPTCHA and the Google Privacy Policy and Terms of Service apply.

$

Do not fill in this field:

This site is protected by reCAPTCHA and the Google Privacy Policy and Terms of Service apply.